開業時期応相談✨
【神戸市北区】ドラッグストア隣接 新築戸建てクリニック
| 物件番号 | 28-464 |
|---|---|
| 所在地 | 兵庫県神戸市北区山田町下谷上 |
| 交通 | 神戸電鉄有馬線 「山の街」駅 徒歩8分 |
| 募集科目 | 内科小児科整形外科皮膚科耳鼻咽喉科眼科泌尿器科精神・心内産科・婦人科脳神経外科 |
| 更新日 | 2026-3-5 |
戸建て駅近く1階テナント駐車場あり賃料が割安フリーレント可能新築・計画案件
お気に入りに登録
物件概要
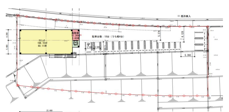
有馬街道沿いで交通量多く視認性抜群の立地で、新築の戸建てクリニック計画です。
隣接に盛業中のドラッグストアがあり、早期の認知が期待できます。
駐車場も充分にあり、広範囲の集患が見込めます。
これから計画していく案件ですので、先生のご希望面積や時期に合わせて柔軟な対応が可能です。
また建て貸しだけでなく売買のご相談も可能な希少物件です。
ご要望等、お気軽にお申し付けください。
| 面積 | 70坪程度は建築可能(面積応相談) |
|---|---|
| 物件の階数 | 1階 |
| 賃貸料、共益費 | 売買もご検討可能です。 詳しくはお問い合わせください。 |
| 敷金・礼金等 | 詳しくはお問い合わせください。 |
| 契約期間 | 20~30年予定 |
| 駐車場 | 18台あり |
|---|
診療圏調査無料サービス
お問い合わせフォームに標榜予定科目・開業予定時期をご記入の上お送りください。
診療圏調査を無料でお受け取り頂けます。(医師限定)


