イニシャルコストを抑えた開業が可能!
【兵庫県猪名川町】日生中央駅 徒歩1分 内科居抜きクリニック
| 物件番号 | 28-416 |
|---|---|
| 所在地 | 兵庫県河辺郡猪名川町松尾台1丁目2番20号日生中央タンモトセンタービル2階 |
| 交通 | 能勢電鉄日生線「日生中央」駅 徒歩1分 |
| 募集科目 | 内科 |
| 更新日 | 2025-10-22 |
商業施設内駅近く継承・居抜き物件
お気に入りに登録
物件概要
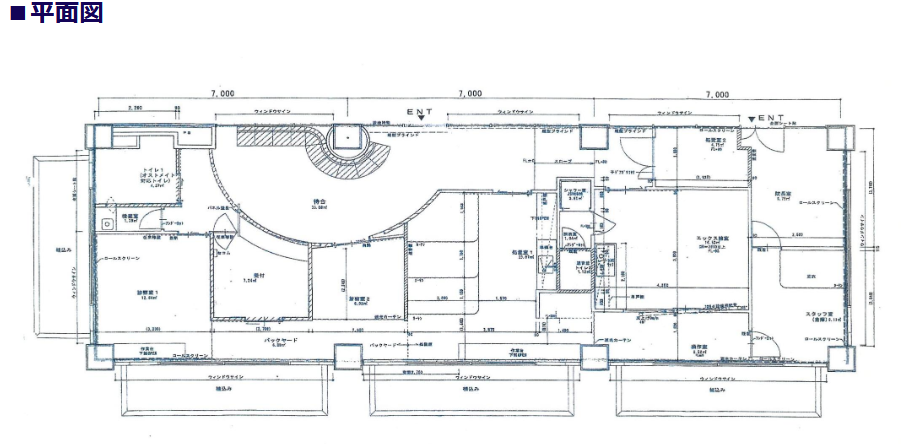
駅から徒歩1分の好立地に位置する内科クリニックの居抜き物件。
医療機器(X線透視撮影、超音波診断装置、心電計)付きで初期投資を抑えて開業可能。
駐車場・駐輪場、エレベーター完備、商業施設に隣接しており集患が期待できる環境。
詳しくはお問い合わせ下さい。
| 面積 | 48.45坪 |
|---|---|
| 物件の階数 | 2階 |
| 賃貸料、共益費 | 詳しくはお問い合わせください |
| 敷金・礼金等 | 詳しくはお問い合わせください |
| 引渡仕様 | 医院内装 |
| 契約期間 | 要相談 |
| 設備・条件等 | エレベーター有、医療機器付き(X線透視撮影装置・超音波診断装置・心電計) |
|---|---|
| 駐車場 | 駐車場、駐輪場あり |
| 周辺環境 | スーパー等の商業施設に隣接 |
診療圏調査無料サービス
お問い合わせフォームに標榜予定科目・開業予定時期をご記入の上お送りください。
診療圏調査を無料でお受け取り頂けます。(医師限定)



