ご開業時期・区画割など柔軟に応相談✨
【大阪市天王寺区】「鶴橋」 駅 徒歩1分 の既存ビルテナント
| 物件番号 | 27-876 |
|---|---|
| 所在地 | 大阪府大阪市天王寺区味原町13-9 |
| 交通 |
「鶴橋」駅 徒歩1分 「大阪上本町」駅 徒歩11分 「谷町九丁目」駅 徒歩12分 |
| 募集科目 | 小児科整形外科眼科泌尿器科精神・心内産科・婦人科脳神経外科 |
| 更新日 | 2025-10-20 |
2路線徒歩圏内駅近く即賃貸可能フリーレント可能
お気に入りに登録
物件概要
千日前線「鶴橋」駅①番出口の目の前のビルです。
千日前通りと玉造筋に面した視認性良好な建物で、昼夜問わず歩行者や自転車の往来が盛んです。
千日前線のほかJR、近鉄と3WAYアクセス✨
JR環状線の鶴橋駅は乗降者数約16万8千人/日で、大阪府内で4番目の乗降客数を誇るJRの大型ターミナル駅です◎
大通り面に大型看板設置スペースがあるのも魅力です。
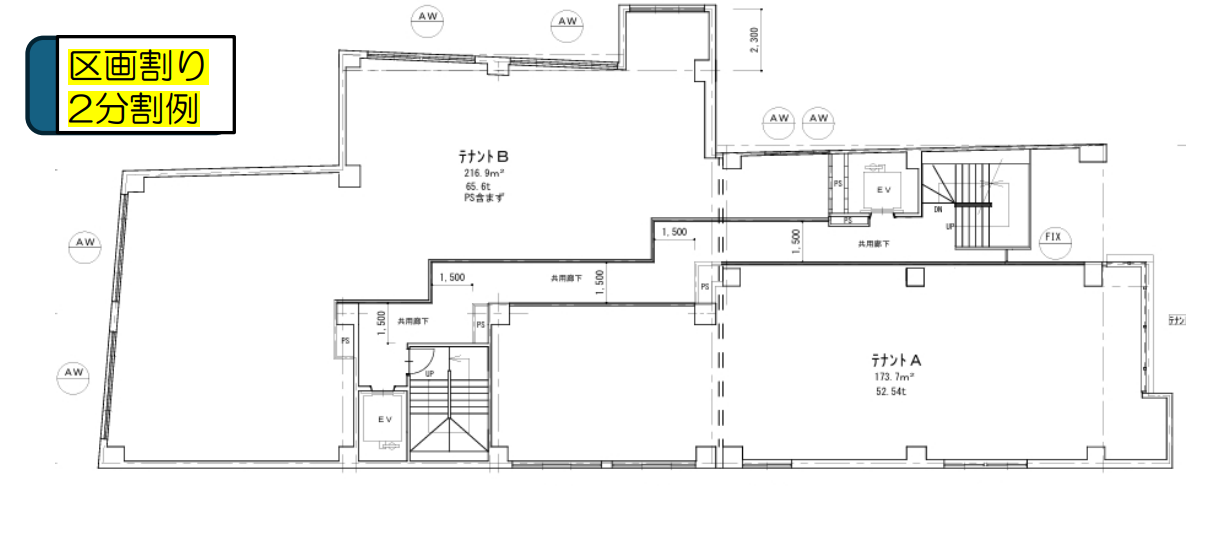
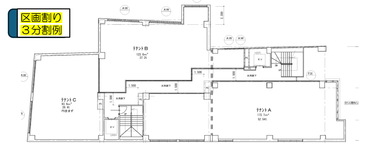
27~135坪のうち、区画割のご相談が可能です。
現地の内覧や競合調査も可能ですので、お気軽にお申し付けください。
| 面積 | 27坪~135坪で調整可能 |
|---|---|
| 物件の階数 | 2階 |
| 賃貸料、共益費 | 詳しくはお問い合わせください。 |
| 敷金・礼金等 | 詳しくはお問い合わせください。 |
| 引渡仕様 | スケルトン |
| 契約期間 | 定期借家契約(20年) |
| 設備・条件等 | 千日前通りに面した大型サインスペースあり/ 9人乗りエレベーター完備 |
|---|---|
| 駐車場 | なし |
診療圏調査無料サービス
お問い合わせフォームに標榜予定科目・開業予定時期をご記入の上お送りください。
診療圏調査を無料でお受け取り頂けます。(医師限定)





